21560 Arc-sur-Tille
Maison à Arc sur Tille 145m², de plain-pied, 5 chambres, 2 salles de bain, garage, terrain de 574m²
Maison à Arc sur Tille 145m², de plain-pied, 5 chambres, 2 salles de bain, garage, terrain de 574m²
Envie de tranquillité et d’accessibilité ? Alors venez découvrir cette maison de 145m² habitable, de plein-pied, située dans une impasse au calme et sans vis à vis.
• Au rez-de-chaussée, une belle entrée vous amène sur un grand salon séjour donnant accès à une véranda et une cuisine pouvant être ouverte sur le séjour. Le salon est équipé d’un poêle à granulés. Un couloir mène à une buanderie et une cave. Le garage accolé à la maison est équipé d’une porte motorisée. Dans la partie nuit, on trouve 3 chambres et une salle de douche et un WC. Tous les volets du rez-de-chaussée sont motorisés.
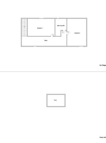
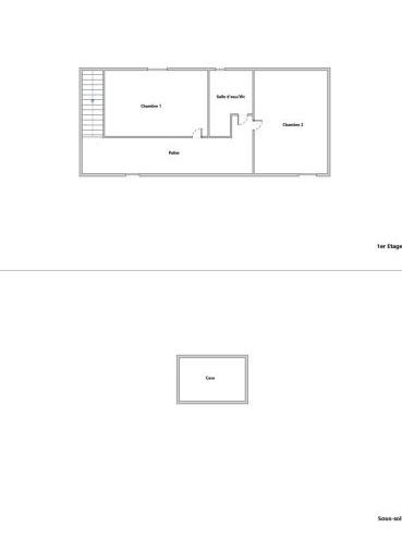
• A l’étage , une 4ème et une 5ème chambre et son point d'eau complètent le bien.
Un abris de jardin pour stoker bois ou matériel de jardin vient compléter la propriété.
-> Venez vite découvrir cette maison qui n'attend plus qu'à ouvrir une nouvelle histoire familiale.
DPE réalisé en Mars 2026.
Pas de frais d’agence.
• Au rez-de-chaussée, une belle entrée vous amène sur un grand salon séjour donnant accès à une véranda et une cuisine pouvant être ouverte sur le séjour. Le salon est équipé d’un poêle à granulés. Un couloir mène à une buanderie et une cave. Le garage accolé à la maison est équipé d’une porte motorisée. Dans la partie nuit, on trouve 3 chambres et une salle de douche et un WC. Tous les volets du rez-de-chaussée sont motorisés.
• A l’étage , une 4ème et une 5ème chambre et son point d'eau complètent le bien.
Un abris de jardin pour stoker bois ou matériel de jardin vient compléter la propriété.
-> Venez vite découvrir cette maison qui n'attend plus qu'à ouvrir une nouvelle histoire familiale.
DPE réalisé en Mars 2026.
Pas de frais d’agence.
375 000 €
145 m²
Code Postal
21560
Ville
Arc-sur-Tille
Type de bien
Maison
GES
C
Classe énergie
C
Mise en ligne
3 avril 2026
Nombre de vues
1 024