25300 Pontarlier
Appartement dans petite maison mitoyenne
Appartement dans petite maison mitoyenne
Appartement composé d'un RDC avec une terrasse donnant sur le jardin de la copropriété et d'un étage.
L’atout de ce bien est la place disponible et l’accès sur un jardin sans vis-à-vis (zone arborée non constructible).
RDC :
Une entrée (10 m²) avec escaliers.
Un garage (20 m²) avec porte électrique.
Une cuisine d'été (17 m²) donnant sur une terrasse (20 m²) qui elle-même donne sur le jardin de la copropriété.
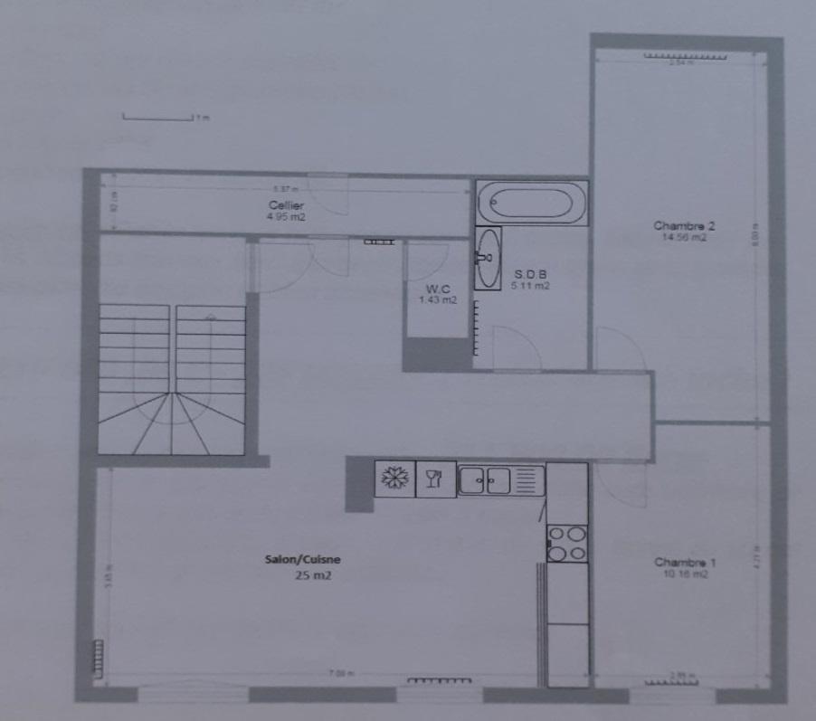
2ème ETAGE : 68 m²
Hall, couloir, cuisine ouverte sur séjour, cellier, 2 chambres, 1 salle de bains, WC séparés.
SURFACE HABITABLE TOTALE : étage (68 m²) + entrée RDC (10 m2) + cuisine d'été RDC (17 m2) = 95 m².
1 PLACE DE PARKING devant la maison.
DPE : D.
Fenêtres double vitrage oscillo-battant.
Chauffage au gaz.
Taxe foncière 2025 : 861 €
Montant ANNUEL des charges de copropriété : 250 €
La maison est divisée en 2 appartements : chaque appartement possède un RDC et un étage.
L'appartement concerné comprend une entrée au RDC avec des escaliers menant au 2ème étage.
L’atout de ce bien est la place disponible et l’accès sur un jardin sans vis-à-vis (zone arborée non constructible).
RDC :
Une entrée (10 m²) avec escaliers.
Un garage (20 m²) avec porte électrique.
Une cuisine d'été (17 m²) donnant sur une terrasse (20 m²) qui elle-même donne sur le jardin de la copropriété.
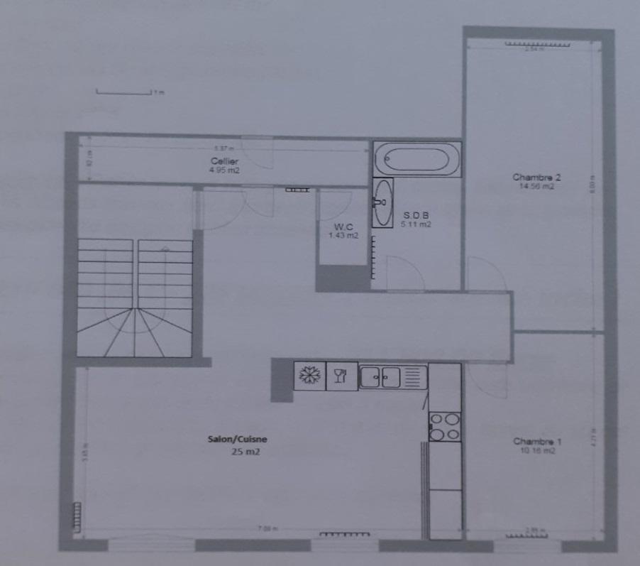
2ème ETAGE : 68 m²
Hall, couloir, cuisine ouverte sur séjour, cellier, 2 chambres, 1 salle de bains, WC séparés.
SURFACE HABITABLE TOTALE : étage (68 m²) + entrée RDC (10 m2) + cuisine d'été RDC (17 m2) = 95 m².
1 PLACE DE PARKING devant la maison.
DPE : D.
Fenêtres double vitrage oscillo-battant.
Chauffage au gaz.
Taxe foncière 2025 : 861 €
Montant ANNUEL des charges de copropriété : 250 €
La maison est divisée en 2 appartements : chaque appartement possède un RDC et un étage.
L'appartement concerné comprend une entrée au RDC avec des escaliers menant au 2ème étage.
218 000 €
95 m²
Code Postal
25300
Ville
Pontarlier
Type de bien
Appartement
GES
E
Classe énergie
D
Mise en ligne
4 avril 2026
Nombre de vues
1 207