21160 Perrigny-lès-Dijon
Bel appartement T2 à PERRIGNY LES DIJON
Bel appartement T2 à PERRIGNY LES DIJON
Appartement T2 dans belle copropriété récente de 2017 à PERRIGNY LES DIJON
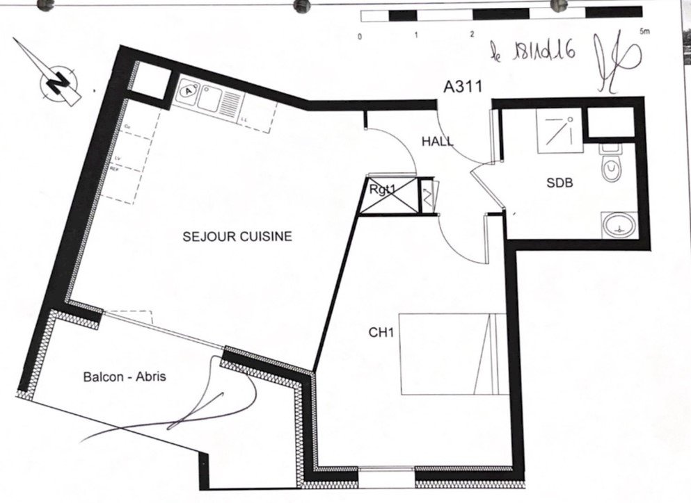
L'appartement est composé de :
- Hall d'entrée avec placard de 4,35 m²
- Une salle d'eau norme PMR de 4,86 m²
- Une belle chambre de 13,47 m²
- Une belle pièce de vie avec cuisine ouverte donnant sur un grand balcon de 7,61 m², la pièce fait 19,56 m²
Il y a aussi une place de parking en souterrain, et un local à vélo.
La surface de l'appartement fait 42,24 m².
Le chauffage est compris dans les charges de copropriété, les charges sont d'environ 1272 à l'année.
D'autres photos de l'appartement vide sur demande.
Copropriété au calme, avec belle vue sur les vignes, proche de toutes commodités.
Le bus passe juste en au pied de l'immeuble pour aller jusqu'au centre de Dijon.
L'appartement est composé de :
- Hall d'entrée avec placard de 4,35 m²
- Une salle d'eau norme PMR de 4,86 m²
- Une belle chambre de 13,47 m²
- Une belle pièce de vie avec cuisine ouverte donnant sur un grand balcon de 7,61 m², la pièce fait 19,56 m²
Il y a aussi une place de parking en souterrain, et un local à vélo.
La surface de l'appartement fait 42,24 m².
Le chauffage est compris dans les charges de copropriété, les charges sont d'environ 1272 à l'année.
D'autres photos de l'appartement vide sur demande.
Copropriété au calme, avec belle vue sur les vignes, proche de toutes commodités.
Le bus passe juste en au pied de l'immeuble pour aller jusqu'au centre de Dijon.
135 000 €
42 m²
Code Postal
21160
Ville
Perrigny-lès-Dijon
Type de bien
Appartement
GES
En cours
Classe énergie
C
Mise en ligne
17 mars 2026
Nombre de vues
1 098