25300 Pontarlier
Appartement dans petite maison mitoyenne
Appartement dans petite maison mitoyenne
Appartement composé d'un RDC avec une terrasse donnant sur le jardin de la copropriété et d'un étage.
RDC :
Une entrée (10 m²) avec escaliers.
Un garage (20 m²) avec porte électrique.
Une cuisine d'été (17 m²) donnant sur une terrasse (20 m²) qui elle-même donne sur le jardin de la copropriété.
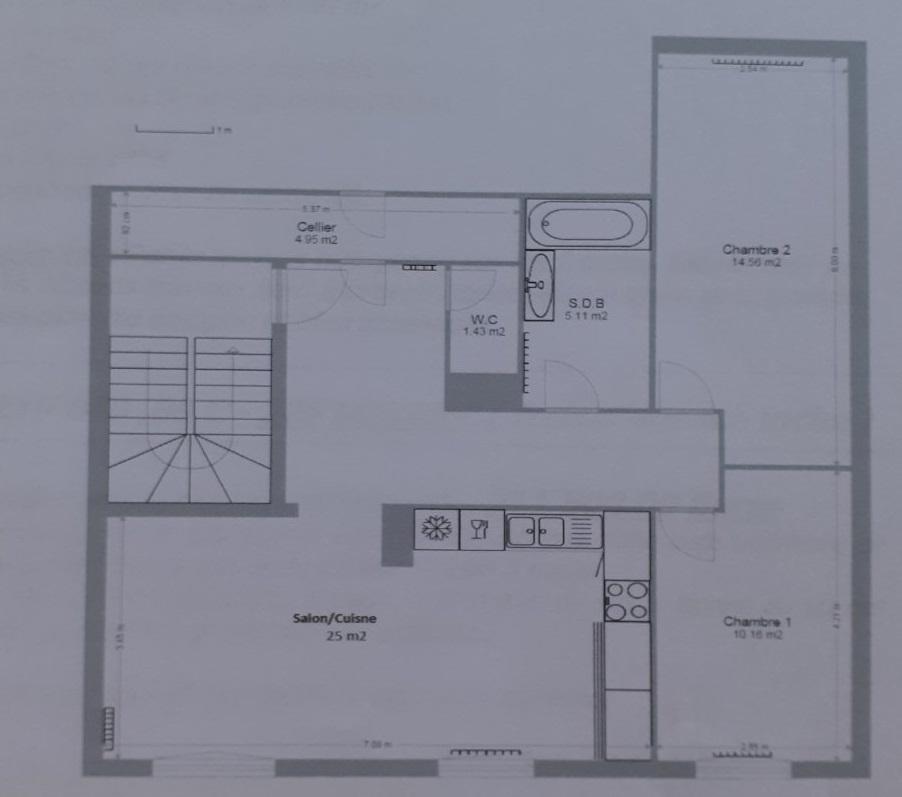
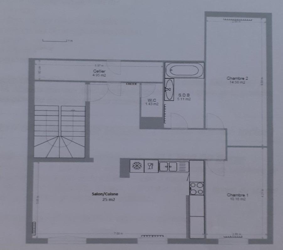
2ème ETAGE : 78 m² : hall, couloir, cuisine ouverte sur séjour, 2 chambres, 1 salle de bains, WC séparés, un cellier (voir plan).
SURFACE HABITABLE TOTALE : étage 78 m² + entrée RDC + cuisine d'été RDC = 94 m².
1 PLACE DE PARKING devant la maison.
DPE : D.
Fenêtres double vitrage oscillo-battant.
Chauffage au gaz.
La maison est divisée en 2 appartements : chaque appartement possède un RDC et un étage.
L'appartement concerné comprend une entrée au RDC avec un escalier menant au 2ème étage.
RDC :
Une entrée (10 m²) avec escaliers.
Un garage (20 m²) avec porte électrique.
Une cuisine d'été (17 m²) donnant sur une terrasse (20 m²) qui elle-même donne sur le jardin de la copropriété.
2ème ETAGE : 78 m² : hall, couloir, cuisine ouverte sur séjour, 2 chambres, 1 salle de bains, WC séparés, un cellier (voir plan).
SURFACE HABITABLE TOTALE : étage 78 m² + entrée RDC + cuisine d'été RDC = 94 m².
1 PLACE DE PARKING devant la maison.
DPE : D.
Fenêtres double vitrage oscillo-battant.
Chauffage au gaz.
La maison est divisée en 2 appartements : chaque appartement possède un RDC et un étage.
L'appartement concerné comprend une entrée au RDC avec un escalier menant au 2ème étage.
218 000 €
78 m²
Code Postal
25300
Ville
Pontarlier
Type de bien
Appartement
GES
E
Classe énergie
D
Mise en ligne
4 avril 2026
Nombre de vues
231